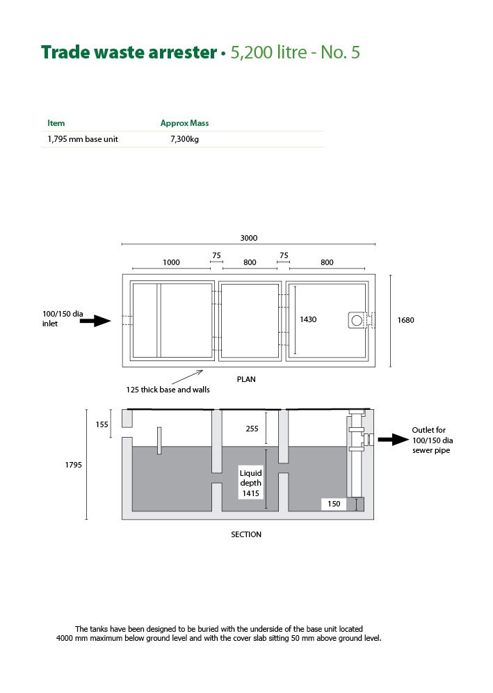
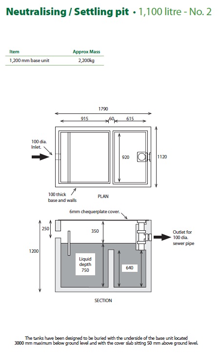
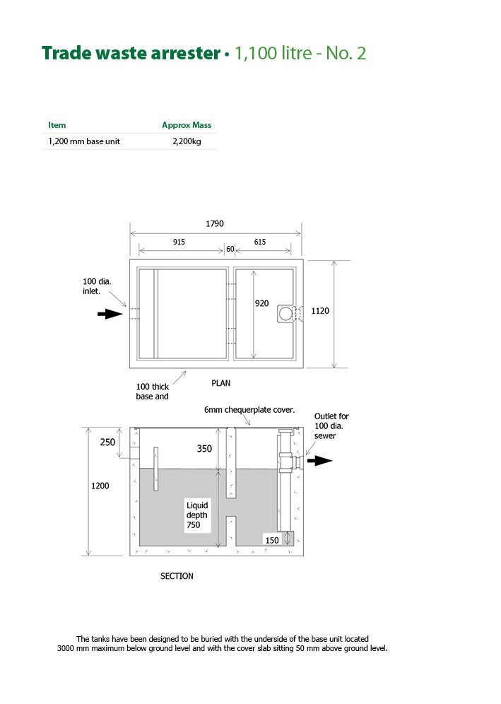
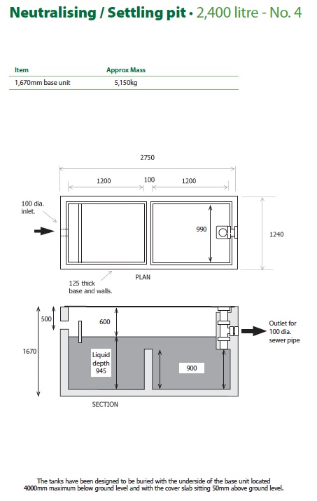
Specifications
| Capacity (Litres) | Item | Type | Length (mm) | Width (mm) | Weight (kg) | Height (mm) | Inlet (mm) | Outlet (mm) |
|---|---|---|---|---|---|---|---|---|
| 1,100 | No. 2 | Vertical | 1790 | 1120mm | 2,200 | 1200mm | 250 | 350 |
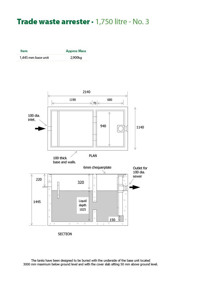
| 1,750 | No. 3 | Vertical | 2140 | 1140mm | 2,900 | 1445mm | 220 | 320 |
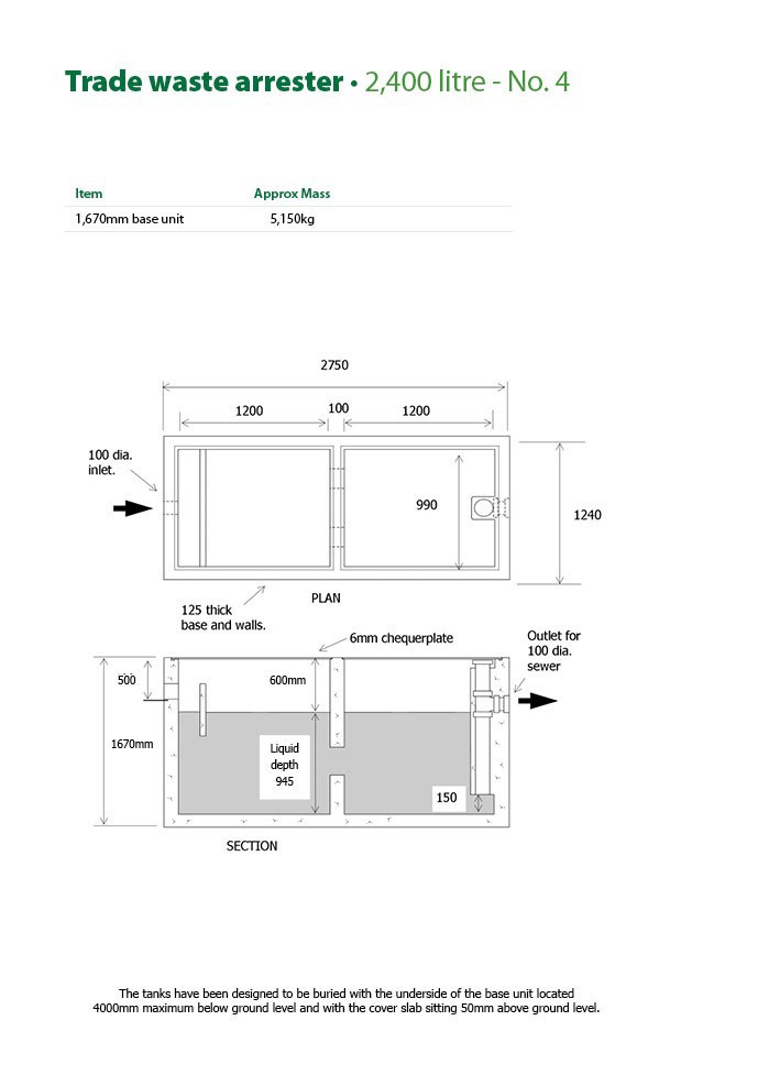
| 2,400 | No. 4 | Vertical | 2750 | 1240mm | 5,200 | 1670mm | 500 | 600 |
| 5,200 | No. 5 | Vertical | 3000 | 1680mm | 7,300 | 1795mm | 155 | 255 |
- The No. 2 and No. 3 tanks have been designed to be buried with the underside of the base unit located a maximum of 3,000mm below ground level and with the cover slab sitting 50mm above ground level.
- The No. 4 and No. 5 tanks have been designed to be buried with the underside of the base unit located a maximum of 4,000mm below ground level and with the cover slab sitting 50mm above ground level.

